Jakie wymiary ma boisko do siatkówki?
Boisko do siatkówki jest prostokątem o wymiarach 18 x 9 m

Zgodnie z przepisami gry w piłkę siatkową „pole gry składa się z boiska do gry i wolnej strefy”. Boisko powinno być prostokątne i symetryczne, otoczone z każdej strony wolną strefą. W artykule przedstawimy, jakie są wymiary boiska do siatkówki halowej. Wszystkie wymiary boiska oraz pozostałe jego elementy są ściśle określone w przepisach gry.
[Aktualizacja 27.01.2024]
Jakie wymiary ma boisko do siatkówki?
Boisko siatkówki jest prostokątem. Ma 18 metrów długości i 9 m szerokości. Oznacza to, że każda połowa boiska jest kwadratem o boku 9 m. Wokół boiska znajduje się tzw. wolna strefa, której szerokość wynosi co najmniej 3 m. Natomiast wysokość wolnej przestrzeni nad polem gry powinna wynosić co najmniej 7 m od podłoża. Należy zaznaczyć, że wolną strefę, która obejmuje obszar poza liniami ograniczającymi boisko, reguluje się w zależności od organizacji. W przypadku międzynarodowych i oficjalnych rozgrywek FIVB wolna przestrzeń powinna wynosić minimum 5 m od linii bocznych i 6,5 metra od linii końcowych. W dodatku wolna przestrzeń powinna wynosić co najmniej 12,5 m wysokości od powierzchni boiska. Dodatkowo każdą nawierzchnię musi zatwierdzić FIVB.
Z kolei powierzchnia boiska halowego powinna być płaska, pozioma i jednolita. W oficjalnych zawodach FIVB dozwolona jest tylko drewniana lub syntetyczna nawierzchnia boiska do siatkówki. Nie pozwala się natomiast na grę na szorstkich i śliskich powierzchniach. Oprócz tego w światowych i oficjalnych zawodach FIVB boisko i wolna strefa muszą różnić się kolorami.
Kolor boiska siatkówki halowej nie jest ściśle określony. Ważne jest, aby boisko i wolna strefa różniły się od siebie kolorami.
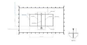
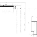
![]() |
![]() |
| Pobierz pełny rozmiar rzutu z góry w pdf | Pobierz pełny rozmiar rzutu z boku w pdf |
Jaka temperatura powinna panować w hali?
Wygląd boiska do siatkówki – linie, siatka, antenki i słupki
Linie boiska
Na boisku do gry w siatkówkę znajdują się linie, które wyznaczają pole gry. Wszystkie linie mają szerokość 5 cm i muszą być w jasnym kolorze, odróżniającym się od koloru boiska – w oficjalnych zawodach FIVB wymagane jest, aby linie boiska były w kolorze białym. Na boisku do siatkówki znajdują się:
- dwie linie boczne,
- dwie linie końcowe,
- linia środkowa oraz
- dwie linie ataku.
Liniami ograniczającymi boisko są linie boczne i końcowe. 
Natomiast linia ataku znajduje się po obu stronach boiska. Dalszą krawędź linii ataku wykreśla się 3 m od linii środkowej boiska. W oficjalnych i światowych rozgrywkach FIVB linię tę przedłuża się z obu stron za linią przerywaną. Ta linia składa się z 5 jednakowych odcinków oddalonych od siebie o 20 cm – każdy odcinek ma 15 cm długości i 5 cm szerokości. W ten sposób odcinki tworzą linię przerywaną o łącznej długości 1,75 m.

Siatka, antenki i słupki
Siatka zawieszona jest pionowo nad linią środkową boiska. Jej szerokość wynosi 1 m, a długość 9,5 – 10 m. Siatkę wykonuje się w formie kwadratowych czarnych oczek o boku 10 cm i obszywa białą taśmą o szerokości 7 cm na górze oraz 5 cm na dole.
- KOBIETY
Seniorki, juniorki i kadetki – 2,24 m
Młodziczki – 2,15 m
- MĘŻCZYŹNI
Seniorzy, juniorzy i kadeci – 2,43 m
Młodzicy – 2,35 m
Po obu stronach, na zewnętrznej krawędzi taśmy bocznej przymocowane są antenki o długości 1,80 m i średnicy 10 mm. Antenki wykonuje się z włókna szklanego lub podobnego materiału i maluje w biało-czerwone pasy o szerokości 10 cm. Górna część antenki wystaje 80 cm ponad siatkę. Za liniami bocznymi, w odległości 0,50 - 1 m umieszczone są słupki podtrzymujące siatkę. Mają one 2,55 m wysokości i powinny umożliwiać regulację. Słupki boiska muszą być wykonane tak, aby były gładkie i zaokrąglone, a także przytwierdzone do podłoża bez odciągów. Do jednego słupka przymocowuje się stanowisko sędziowskie, na którym stoi sędzia pierwszy. Zarówno słupki boiska, jak i stanowisko sędziego, należy odpowiednio zabezpieczyć, aby nie stwarzały zagrożenia dla zawodników.
Boisko siatkówki halowej — strefy
Na każdym boisku piłki siatkowej wyznaczone są strefy. Poniżej omówimy każdą z nich.
Strefa zagrywki
Jak łatwo się domyślić, jest to strefa, w której zawodnicy wykonują zagrywkę. Jest to obszar o szerokości 9 m za linią końcową boiska, który ograniczają krótkie linie o długości 15 cm. Biegną one prostopadle do linii końcowej i są od niej oddalone o 20 cm. Obie linie znajdują się wewnątrz strefy zagrywki. Jeśli chodzi o jej głębokość, to wynosi tyle, ile szerokość wolnej strefy.
Strefa ataku
Po każdej stronie boiska znajduje się strefa ataku, która ograniczona jest przez oś linii środkowej i dalszą krawędź linii ataku. Strefa ataku rozciąga się poza boczne linie boiska do piłki siatkowej aż do końca wolnej strefy.
Strefa zmian
To ważna strefa, która znajduje się po obu stronach boiska. Jest to miejsce, w którym gracz rezerwowy zmienia się z zawodnikiem będącym na boisku. Strefę zmian wyznaczają przedłużone linie ataku i ciągnie się ona aż do stolika sekretarza.
Strefa zastąpień libero
Na każdym boisku piłki siatkowej znajduje się także strefa zastąpień libero. To właśnie w niej zawodnik grający na pozycji libero wymienia się ze środkowym, gdy przechodzi do pierwszej linii. Ta strefa jest częścią wolnego pola gry po stronie ławek drużyny. Ograniczają ją przedłużona linii ataku i umowne przedłużenie linii końcowej boiska.
Pole rozgrzewki
Mamy jeszcze strefę rozgrzewki, która jest polem o wymiarach 3 × 3 m. Znajduje się w obu rogach po stronie ławek drużyn, aby nie zasłaniać widoku kibicom. W przypadku, gdy trybuny znajdują się przynajmniej 2,5 m nad powierzchnią boiska, wyznacza się pole rozgrzewki za ławkami zespołów.
Wszystkie wymiary boiska do siatkówki — podsumowanie
- Wymiary boiska siatkówki — szerokość boiska wynosi 9 m, a długość 18 m.
- Połowa boiska siatkówki — 9 × 9 m.
- Wymiary strefy wolnej — minimum 3 metry szerokości i przynajmniej 7 metrów wysokości od boiska.
- Szerokość linii środkowej boiska — 5 cm. Wszystkie linie boiska mają taką samą szerokość.
- Wymiary siatki do siatkówki — siatka ma 1 metr szerokości i długość od 9,5 do 10 m.
- Wysokość siatki siatkówki — 2,24 m dla kobiet i 2,43 m dla mężczyzn.








6 komentarzy